THE CRUCIBLE
SHEFFIELD, UK
BURRELL FOLEY FICHER LLP
2004-2009
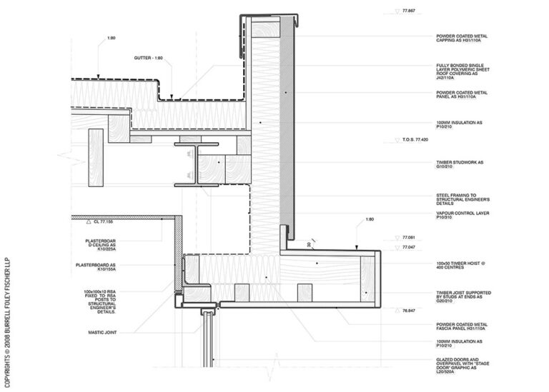
The Crucible Theatre, a listed Grade II building, opened in 1971 and was designed by RHWL & Associates with Consulting Engineers Ove Arup & Partners. Comprising a 400-seat Studio theatre (for drama and music) as well as the main 980-seat auditorium, it also hosts the annual World Snooker Championships. In 2004, Burrell Foley Fischer LLP was appointed to propose possible strategies for the renovation of the theatre. The resulted scheme included the refurbishment of the existing fabric and the expansion of its footprint to accommodate new rehearsal space, stage door and accessible vertical circulation to connect its various floor levels.
My participation in the scheme as an architect working in Burrell Foley Fischer LLP from preliminary studies to the completion of works on site five years later, was a valuable experience that allowed me to broad my understanding of the design and construction of architecture, cementing the knowledge that I acquired as a student. It was also my introduction to the production of architecture in the UK and its particularities.






















